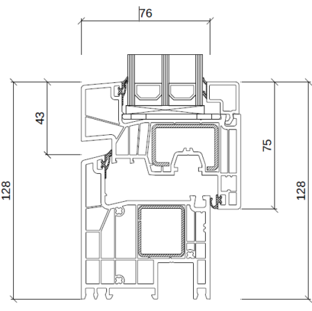
Profilsystem greenEvolution Box
Produkte > Profilsysteme

Die Designvariante in flächenbündiger Ausführung.
- Hohe Verglasungsstärken für Schallschutz und Sicherheit
- Elegantes Design im kantigen Look
- Geringe Ansichtshöhe für optimale Nutzung der Glasfläche

